highlight_off
Riferimento annuncio 323859 info

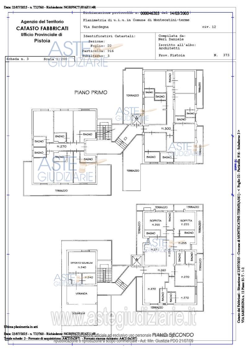
Albergo Via Sardegna, 12, 51016 Montecatini Terme PT, Italia, 51016 Montecatini-Terme (PT)

60,00
1457,70
41
0
€ 872.000
Vendita all'asta Senza incanto, con gara telematica asincrona - LOTTO UNICO: Diritti di piena proprietà su albergo denominato “Hotel Vintage”. Prezzo base € 872.000,00 (offerta minima € 654.000,00). Data inizio operazioni di vendita: 29/04/2026 ore 09:45. Giudice: Dott. Nicoletta Maria Caterina Curci. Professionista delegato alla vendita: Avv. Alberto Narbona - Email "info@albertonarbona.it"; Tel. 0573/367297. Custode Giudiziario: Istituto Vendite Giudiziarie Di Pistoia - Email "prenota.pt@isveg.it". Rif. Tribunale di Pistoia - Espropriazione immobiliare (cartabia) n. 104/2025

Superficie 1457,70 mq
Vani 60,00
Bagni 41
Piano 0

Tipologia di vendita Giudiziaria
Modalità di vendita Asincrona telematica
Termine presentazione offerte 28/04/2026 ore 12:00
Data e ora inizio gara 29/04/2026 ore 09:45
Codice ID astegiudiziarie.it 4342916
60,00
1457,70
41
0
€ 872.000

Ti interessa questa vendita?

north_east

Clicca qui per essere indirizzato alla scheda sul sito di provenienza

Bene di astegiudiziarie.it