highlight_off
Riferimento annuncio 78719 info

Albergo via Caprera n.19, 07020 Luogosanto (OT)

0
€ 605.623
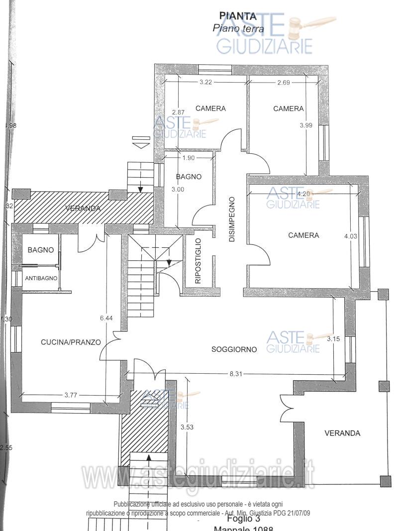
Vendita all'asta Senza incanto, con gara telematica asincrona - LOTTO UNICO: In Comune di Luogosanto (SS), alla Via San Trano, ora Via Caprera n.19, complesso immobiliare a destinazione alberghiera, di mq. comm.li 3.340,66 ca, con arredi macchinari ed attrezzature necessari alla conduzione dell'attività alberghiera e di ristorazione. Prezzo base € 605.623,04 (offerta minima € 454.217,28). Data inizio operazioni di vendita: 04/06/2026 ore 17:00. Professionista delegato alla vendita Avv. Marco Sechi - Email "marcosechi@legalsechi.it"; Cell. 3928305619; Tel. 0783302873. Custode Giudiziario Ivg Tempio - Email "visite.ivgtempio@gmail.com"; Cell. 079630505; Tel. 079630505. Rif. Tribunale di Tempio Pausania - Esecuzione immobiliare post legge 80 n. 117/2012

Superficie mq
Vani
Bagni
Piano 0

Tipologia di vendita Giudiziaria
Modalità di vendita Asincrona telematica
Termine presentazione offerte 01/01/1900 ore 00:00
Data e ora inizio gara 04/06/2026 ore 17:00
Codice ID astegiudiziarie.it 4197919
0
€ 605.623

Ti interessa questa vendita?

north_east

Clicca qui per essere indirizzato alla scheda sul sito di provenienza

Bene di astegiudiziarie.it