highlight_off
Riferimento annuncio 131085 info

Albergo Località Marina - Viale Ionio, 401, 74013 Ginosa (TA)

450,00
0
€ 765.450
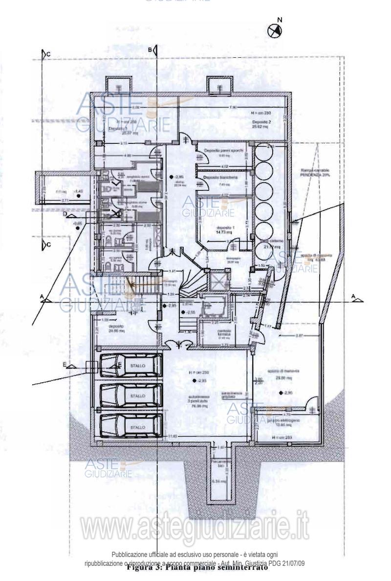
Vendita all'asta Senza incanto, con gara telematica asincrona - LOTTO 1: Complesso immobiliare costituito da 5 piani oltre annessa ampia area pertinenziale. Prezzo base € 765.450,00 (offerta minima € 574.088,00). Data inizio operazioni di vendita: 28/01/2026 ore 16:00. Giudice Dott. Andrea Paiano. Professionista delegato alla vendita Avv. Daniele D'elia. Custode Giudiziario Avv. Daniele D'elia - Email "daniele.delia@signumlegis.it"; Tel. 0994538130. Rif. Tribunale di Taranto - Esecuzione immobiliare post legge 80 n. 50/2019

Superficie 450,00 mq
Vani
Bagni
Piano 0

Tipologia di vendita Giudiziaria
Modalità di vendita Asincrona telematica
Termine presentazione offerte 27/01/2026 ore 12:00
Data e ora inizio gara 28/01/2026 ore 16:00
Codice ID astegiudiziarie.it 4239387
450,00
0
€ 765.450

Ti interessa questa vendita?

north_east

Clicca qui per essere indirizzato alla scheda sul sito di provenienza

Bene di astegiudiziarie.it