highlight_off
Riferimento annuncio 273152 info

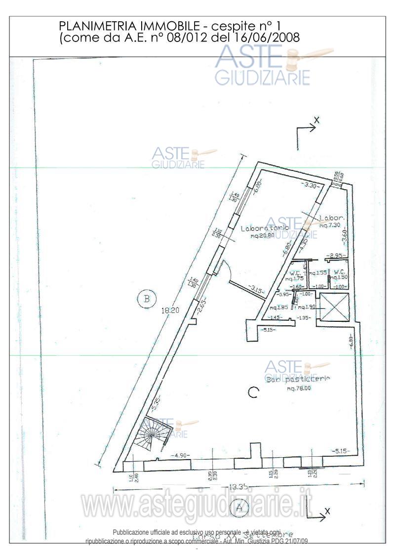
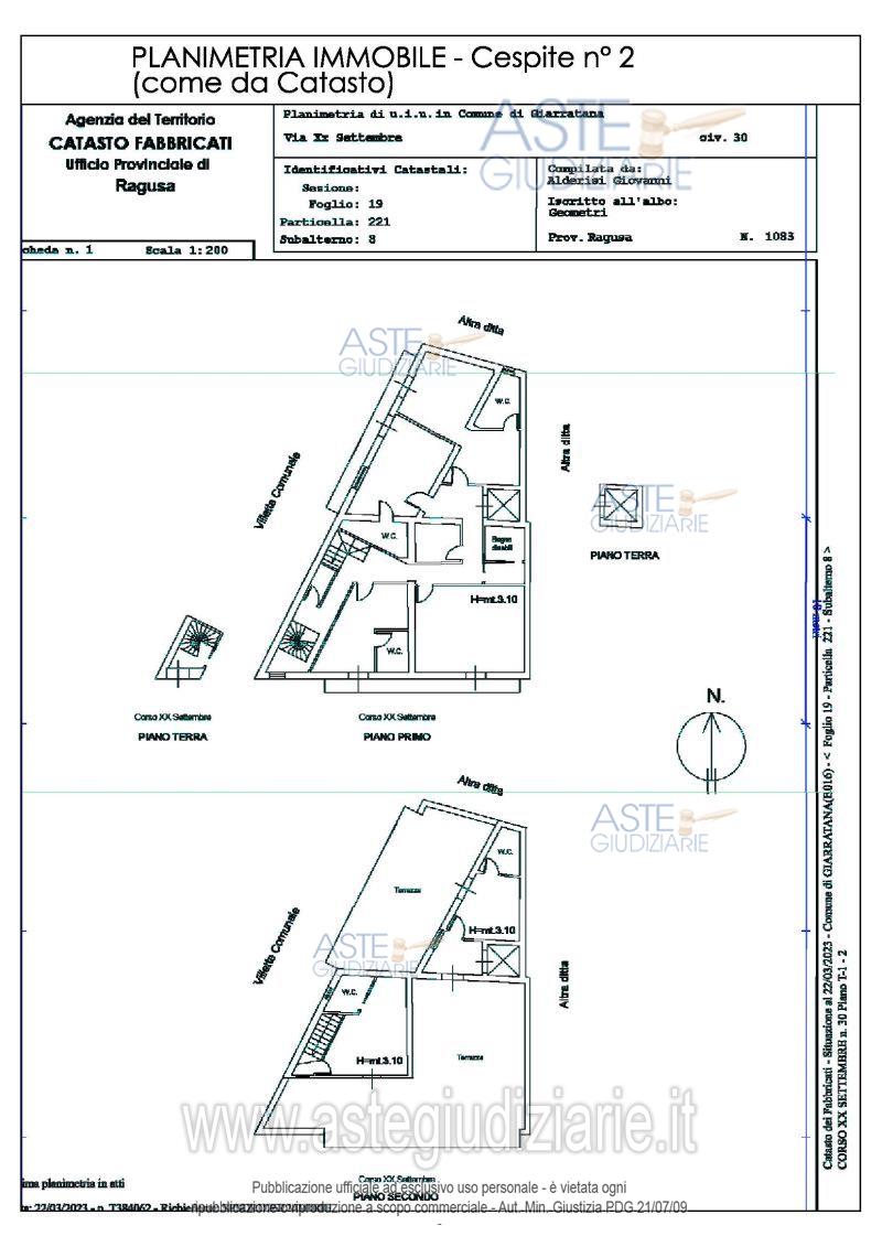
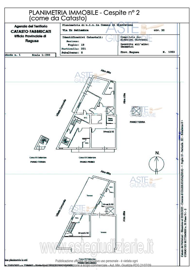
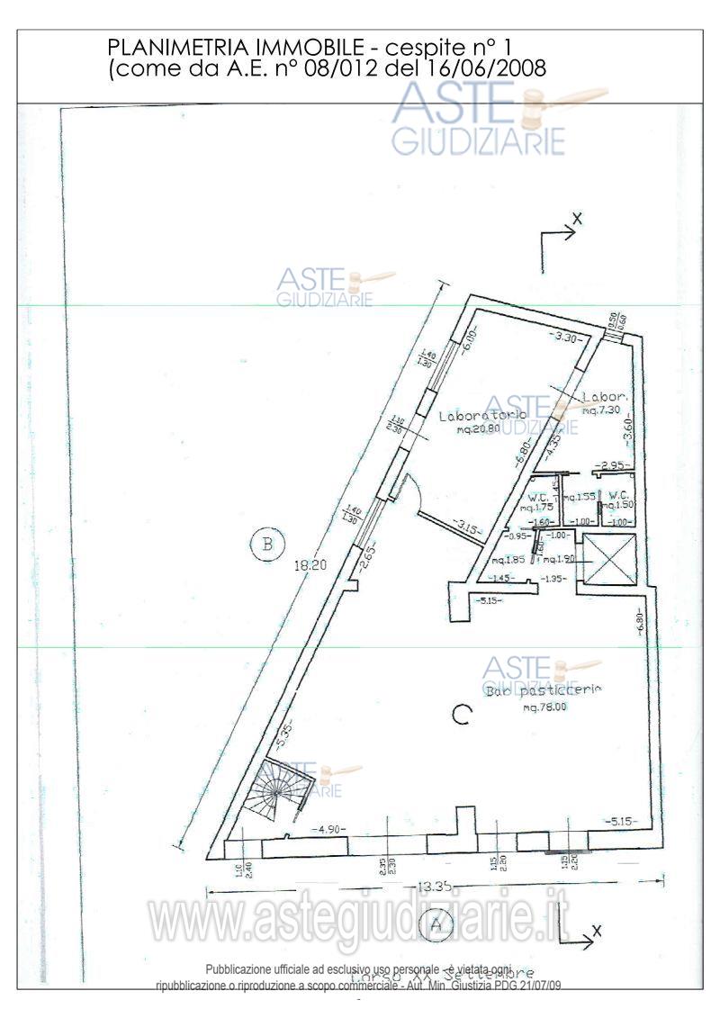
Albergo Corso XX Settembre 30, 97010 Giarratana (RG)

1,00
240,00
1
0
€ 39.741
Vendita all'asta Senza incanto, con gara telematica sincrona mista - LOTTO 2: Diritto di proprietà esclusiva su locale ricettivo adibito ad “attività ricettiva” al pianoprimo e secondo in Giarratana. Prezzo base € 39.740,70 (offerta minima € 29.805,60). Data vendita 26/02/2026 ore 17:00. Professionista delegato alla vendita Avv. Elia Amore. Custode Giudiziario Avv. Elia Amore - Email "eliaamore@gmail.com". Rif. Tribunale di Ragusa - Esecuzione immobiliare post legge 80 n. 268/2022

Superficie 240,00 mq
Vani 1,00
Bagni 1
Piano 0

Tipologia di vendita Giudiziaria
Modalità di vendita Sincrona mista
Termine presentazione offerte 25/02/2026 ore 13:00
Data e ora inizio gara 26/02/2026 ore 17:00
Codice ID astegiudiziarie.it 4302823
1,00
240,00
1
0
€ 39.741

Ti interessa questa vendita?

north_east

Clicca qui per essere indirizzato alla scheda sul sito di provenienza

Bene di astegiudiziarie.it