highlight_off
Riferimento annuncio 322708 info

Albergo Via Nazario Sauro, 42, 00060 Formello RM, Italia, 00060 Formello (RM)

0
€ 658.000
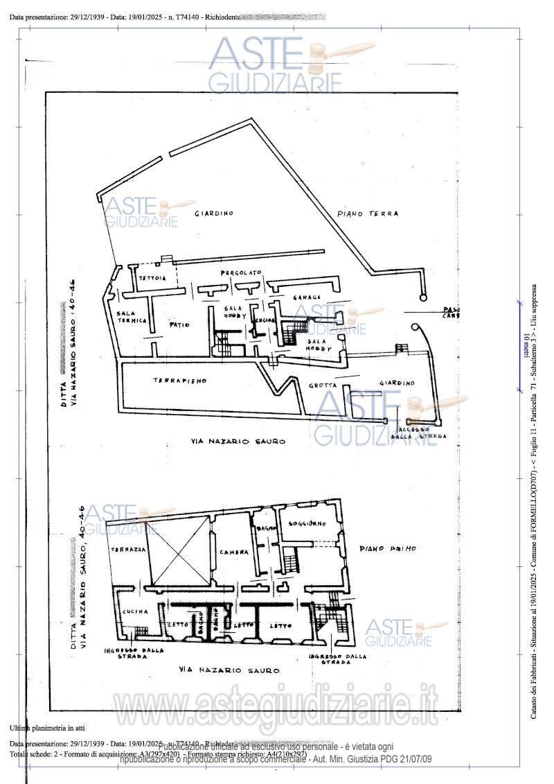
Vendita all'asta Senza incanto, con gara telematica asincrona - LOTTO UNICO: Quota pari a 1/1 del diritto di proprietà sugli immobili siti in Comune di Formello (RM), Via Nazario Sauro n.42/a,b,c,d e precisamente:fabbricato civile d’epoca sviluppato su due piani fuori terra ed un terrazzo di copertura, attualmente utilizzato per uso “affittacamere - bed end breakfast”, con corte esterna formata da due aree a quota differente, oltre ad unità immobiliare posta al piano S1, accatastata con categoria C/1 (negozi e botteghe) inutilizzata perché in fase di ristrutturazione. Prezzo base € 658.000,00 (offerta minima € 493.500,00). Data inizio operazioni di vendita: 10/03/2026 ore 16:00. Professionista delegato alla vendita Avv. Luca Datti - Email "avv.lucadatti@gmail.com"; Tel. 0774313306. Custode Giudiziario I.V.G Di Roma S.R.L. Istituto Vendite Giudiziarie - Email "pubblicita@ivgroma.it"; Tel. 06 83751500. Rif. Tribunale di Tivoli - Esecuzione immobiliare post legge 80 n. 390/2023

Superficie mq
Vani
Bagni
Piano 0

Tipologia di vendita Giudiziaria
Modalità di vendita Asincrona telematica
Termine presentazione offerte 09/03/2026 ore 23:59
Data e ora inizio gara 10/03/2026 ore 16:00
Codice ID astegiudiziarie.it 4342221
0
€ 658.000

Ti interessa questa vendita?

north_east

Clicca qui per essere indirizzato alla scheda sul sito di provenienza

Bene di astegiudiziarie.it