highlight_off
Riferimento annuncio 310649 info

Albergo Viale dei Pini, 37, 47042 Cesenatico FC, Italia, 47042 Cesenatico (FC)

0
€ 811.500
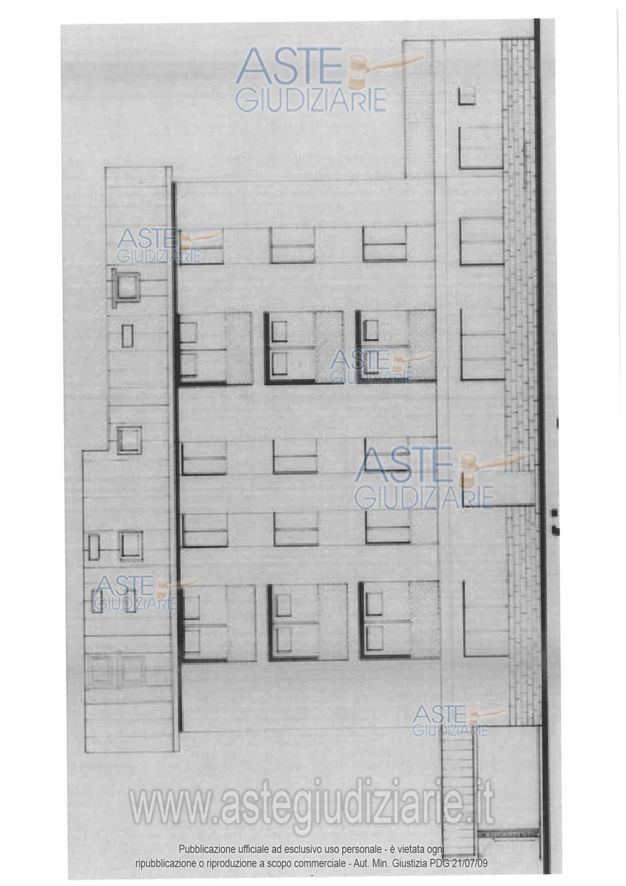
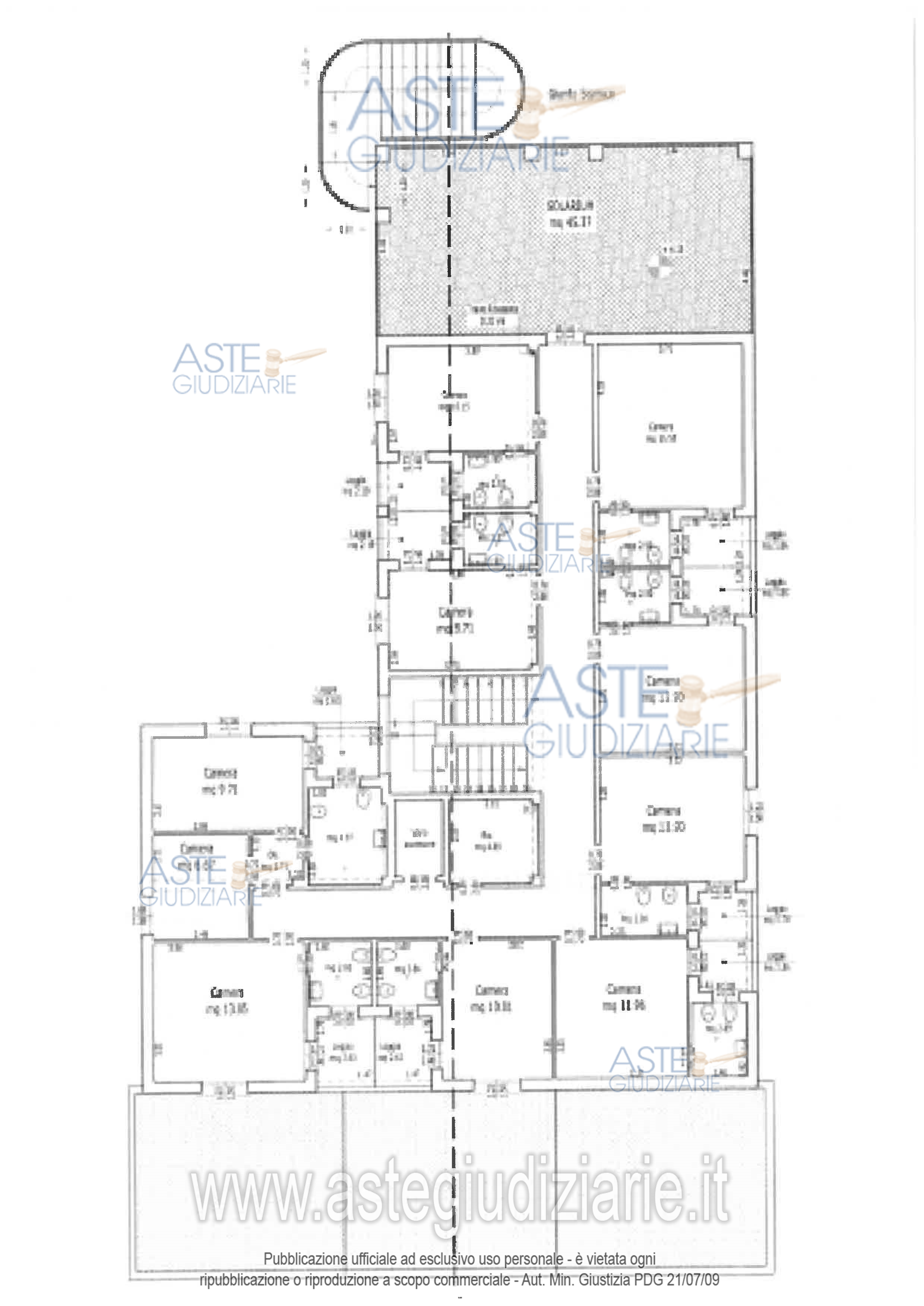
Vendita all'asta Senza incanto, con gara telematica asincrona - LOTTO UNICO: 1/1 di hotel sito in località Zadina di Cesenatico, distribuito su 5 piani fuori terra (piani I, II, III e IV) ed 1 piano interrato, con servizi in corpo staccato, piscina sita nell’area esterna pavimentata di pertinenza di mq 1066, costruito negli anni ’60 e completamente ristrutturato negli anni 2000. Superficie lorda commerciale: numero camere tot. pari a 37,65. Libero e nella disponibilità del Custode Giudiziario IVG Forlì Srl. Prezzo base € 811.500,00 (offerta minima € 608.625,00). Data inizio operazioni di vendita: 17/12/2025 ore 09:00. Giudice Danilo Maffa. Professionista delegato alla vendita Not. Maurizio Pierantoni - Email "esecuzioninotai@gmail.com"; Tel. 054320059. Custode Giudiziario Ivg Forli’ Srl - Email "ivg.forli@gmail.com"; Tel. 0543473480. Rif. Tribunale di Forlì - Espropriazione immobiliare (cartabia) n. 89/2024

Superficie mq
Vani
Bagni
Piano 0

Tipologia di vendita Giudiziaria
Modalità di vendita Asincrona telematica
Termine presentazione offerte 01/01/1900 ore 00:00
Data e ora inizio gara 17/12/2025 ore 09:00
Codice ID astegiudiziarie.it 4331467
0
€ 811.500

Ti interessa questa vendita?

north_east

Clicca qui per essere indirizzato alla scheda sul sito di provenienza

Bene di astegiudiziarie.it