highlight_off
Riferimento annuncio 331945 info

Albergo Via Tavolese n. 221, 50052 Certaldo (FI)

0
€ 2.754.000
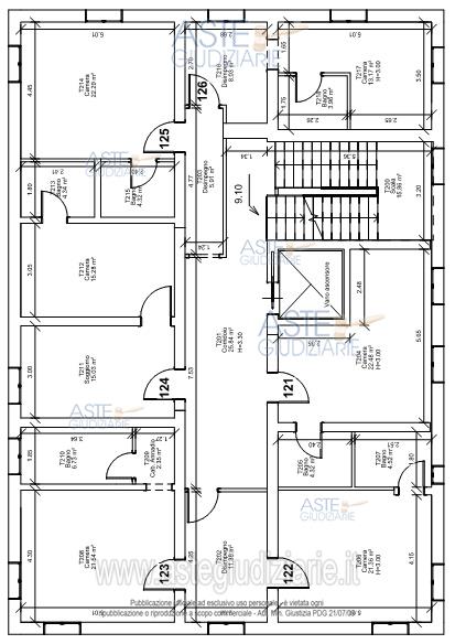
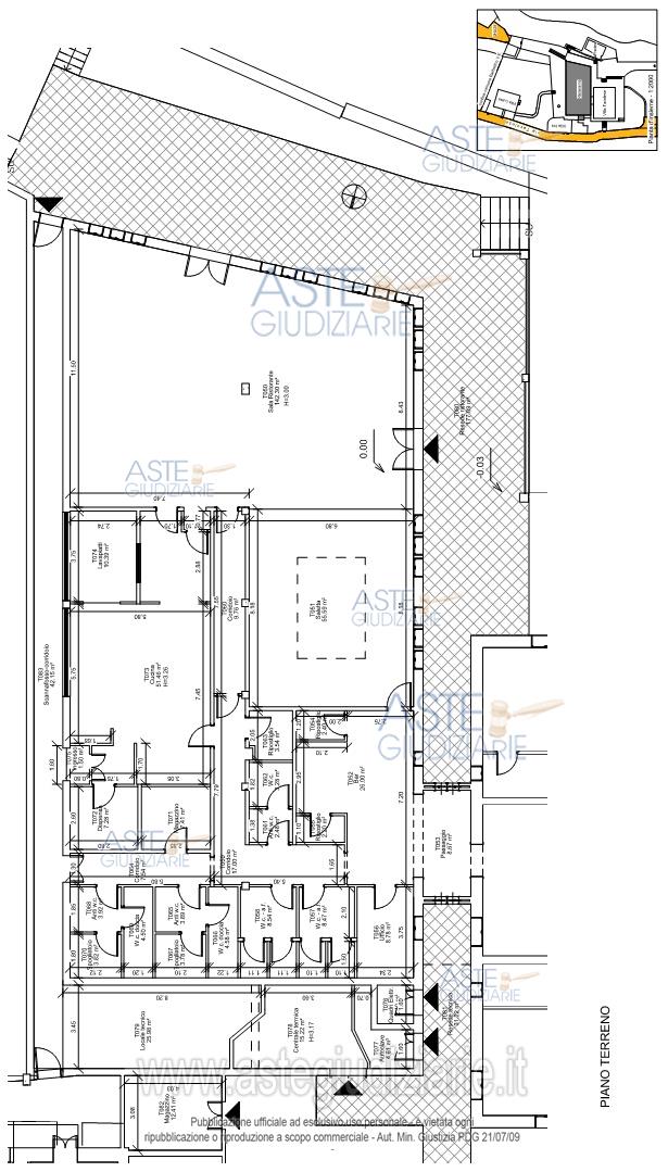
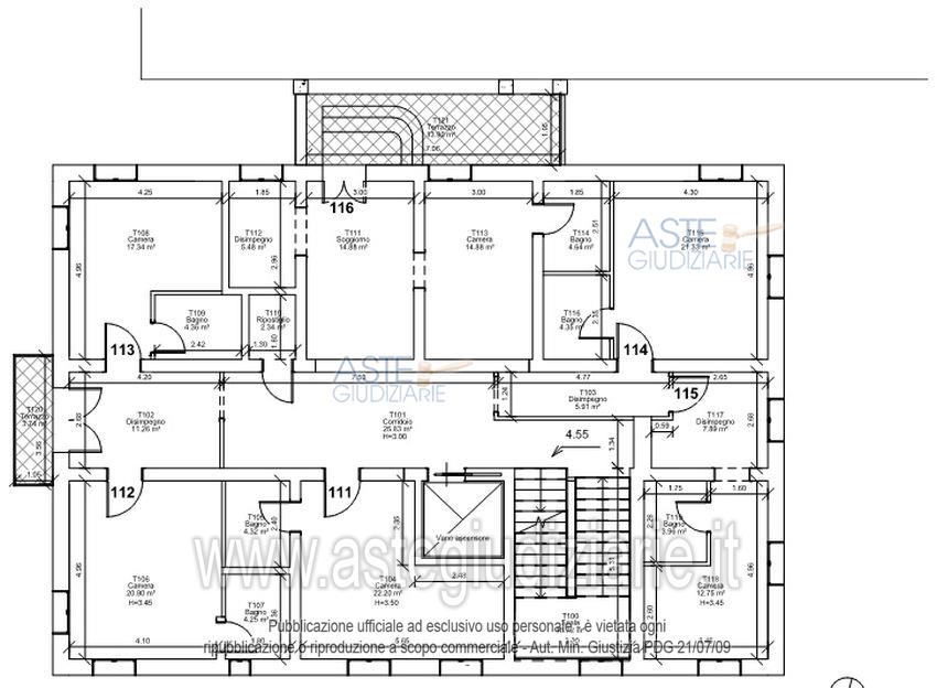
Vendita all'asta Senza incanto, con gara telematica sincrona - LOTTO 1: Villa con piscina distribuita su quattro piani fuori terra con destinazione e conformazione turistico ricettiva collegata direttamente dal piano terreno con il ristorante. Dispone di n. 16 camere ed una suite oltre a un’area di parcheggio in una parte del giardino. Completano il lotto un locale tecnico a comune, un’ area rurale, che funge da ingresso e un magazzino posto adiacente ai locali tecnici dell’albergo ristorante. Prezzo base € 2.754.000,00 (offerta minima € 2.065.500,00). Data vendita 17/06/2026 ore 09:00. Professionista delegato alla vendita: Avv. Ilaria Biagiotti - Email "avv.ilariabiagiotti@gmail.com"; Tel. 055/473590. Custode Giudiziario: Istituto Vendite Giudiziarie Di Firenze - Email "prenota.fi@isveg.it"; Tel. 055/2340830. Rif. Tribunale di Firenze - Esecuzione immobiliare post legge 80 n. 164/2017

Superficie mq
Vani
Bagni
Piano 0

Tipologia di vendita Giudiziaria
Modalità di vendita Sincrona telematica
Termine presentazione offerte 01/01/1900 ore 00:00
Data e ora inizio gara 17/06/2026 ore 09:00
Codice ID astegiudiziarie.it 4349032
0
€ 2.754.000

Ti interessa questa vendita?

north_east

Clicca qui per essere indirizzato alla scheda sul sito di provenienza

Bene di astegiudiziarie.it