highlight_off
Riferimento annuncio 321611 info

Albergo Via Silvio Pellico, 6, 24020 Castione della Presolana BG, Italia, 24020 Castione della Presolana (BG)

0
€ 1.226.000
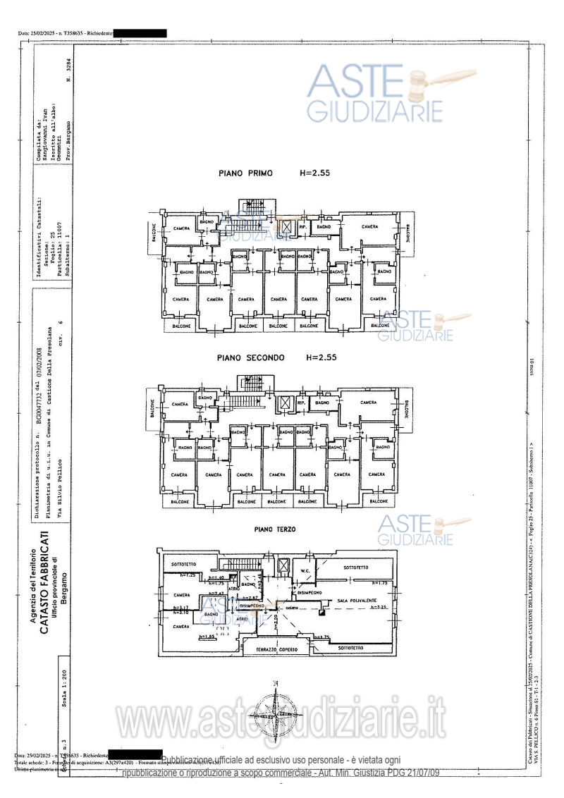
Vendita all'asta Senza incanto, con gara telematica asincrona - LOTTO UNICO: Edificio con destinazione alberghiera di tipo Meublè, composto da 25 camere con servizi igienici poste al piano terra, primo, secondo e terzo piano. Al piano interrato e piano terra sale polivalenti ed accessori tecnici. L’ingresso pedonale avviene su via Silvio Pellico con ingresso ampio senza gradini. Un vano scala interno collega tutti i piani ed è comunicante con la scala esterna di sicurezza. I piani sono serviti da un ascensore interno. Prezzo base € 1.226.000,00 (offerta minima € 919.500,00). Data inizio operazioni di vendita: 12/02/2026 ore 15:00. Professionista delegato alla vendita Avv. Laura Minotti - Email "l.minotti@slbotti.com"; Tel. 035243420. Custode Giudiziario Avv. Ulisse Plebani - Email "ulisse.plebani@libero.it"; Tel. 035570414. Rif. Tribunale di Bergamo - Esecuzione immobiliare post legge 80 n. 628/2024

Superficie mq
Vani
Bagni
Piano 0

Tipologia di vendita Giudiziaria
Modalità di vendita Asincrona telematica
Termine presentazione offerte 11/02/2026 ore 12:00
Data e ora inizio gara 12/02/2026 ore 15:00
Codice ID astegiudiziarie.it 4341210
0
€ 1.226.000

Ti interessa questa vendita?

north_east

Clicca qui per essere indirizzato alla scheda sul sito di provenienza

Bene di astegiudiziarie.it