highlight_off
Riferimento annuncio 315285 info

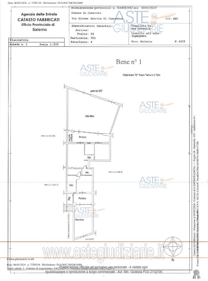
Albergo Via Sirene, 84059 Marina di Camerota SA, Italia, 84040 Camerota (SA)

4590,10
0
€ 1.128.500
Vendita all'asta Senza incanto, con gara telematica asincrona - LOTTO UNICO: Piena ed esclusiva proprietà di Porzione di complesso turistico-alberghiero sito in Camerota (SA) Frazione Marina, Località S. Anna alla via delle Sirene snc composto da più unità. Prezzo base € 1.128.500,00 (offerta minima € 846.375,00). Data inizio operazioni di vendita: 26/11/2025 ore 10:30. Giudice Dott. Roberta Giglio. Professionista delegato alla vendita Dott. Giovanna Romanelli. Custode Giudiziario Dott. Giovanna Romanelli - Email "giovannaromanelli@libero.it"; Cell. 3498693217; Tel. 0974270699. Rif. Tribunale di Vallo della Lucania - Esecuzione immobiliare post legge 80 n. 38/2023

Superficie 4590,10 mq
Vani
Bagni
Piano 0

Tipologia di vendita Giudiziaria
Modalità di vendita Asincrona telematica
Termine presentazione offerte 01/01/1900 ore 00:00
Data e ora inizio gara 26/11/2025 ore 10:30
Codice ID astegiudiziarie.it 4336432
4590,10
0
€ 1.128.500

Ti interessa questa vendita?

north_east

Clicca qui per essere indirizzato alla scheda sul sito di provenienza

Bene di astegiudiziarie.it