Riferimento annuncio 300309
info
Affitto, Cessione d'azienda C.da Fargione - Agglomerato Industriale ASI - V.le delle Industrie n.16, 97015 Modica (RG)
€ 3.266.067
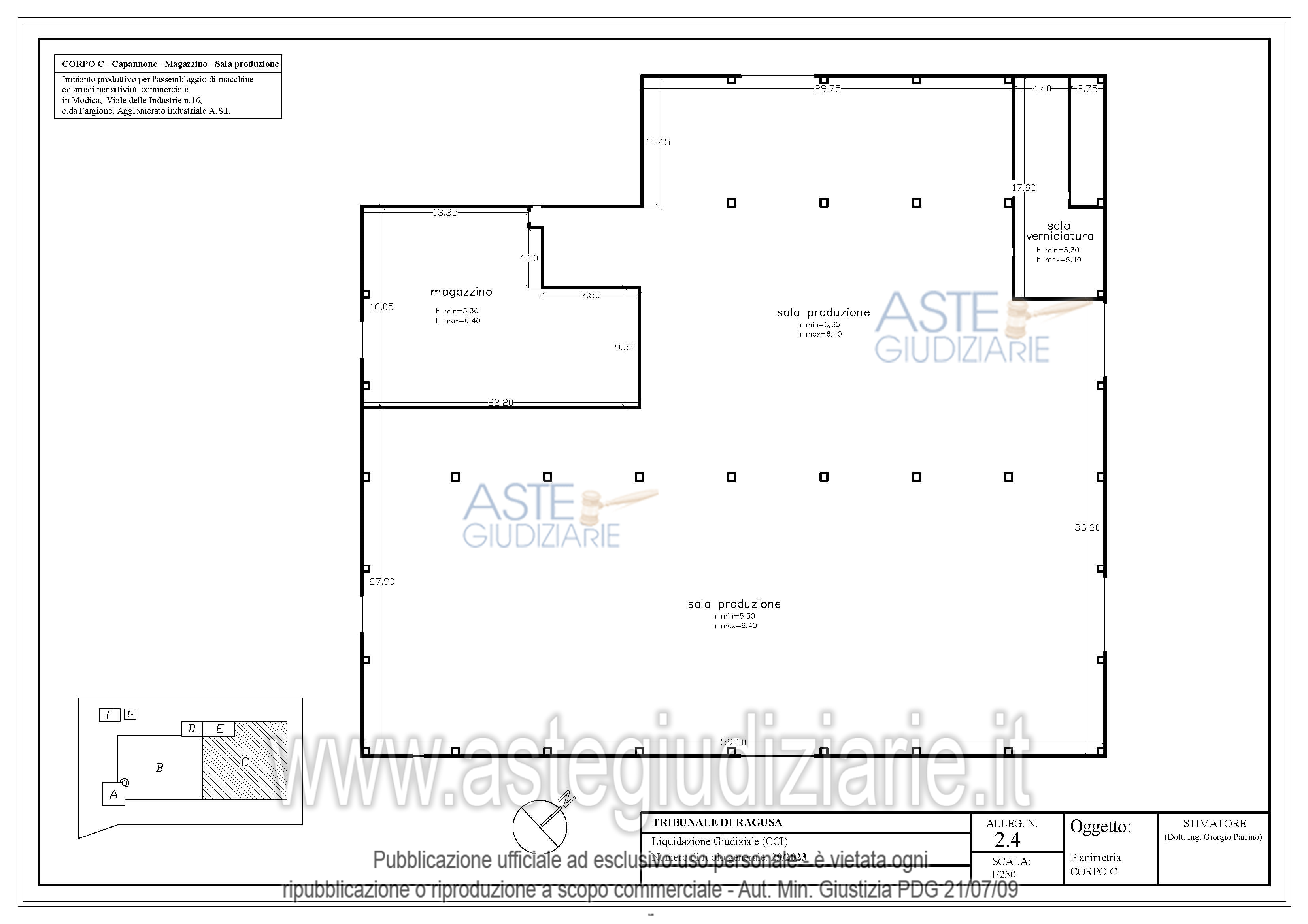
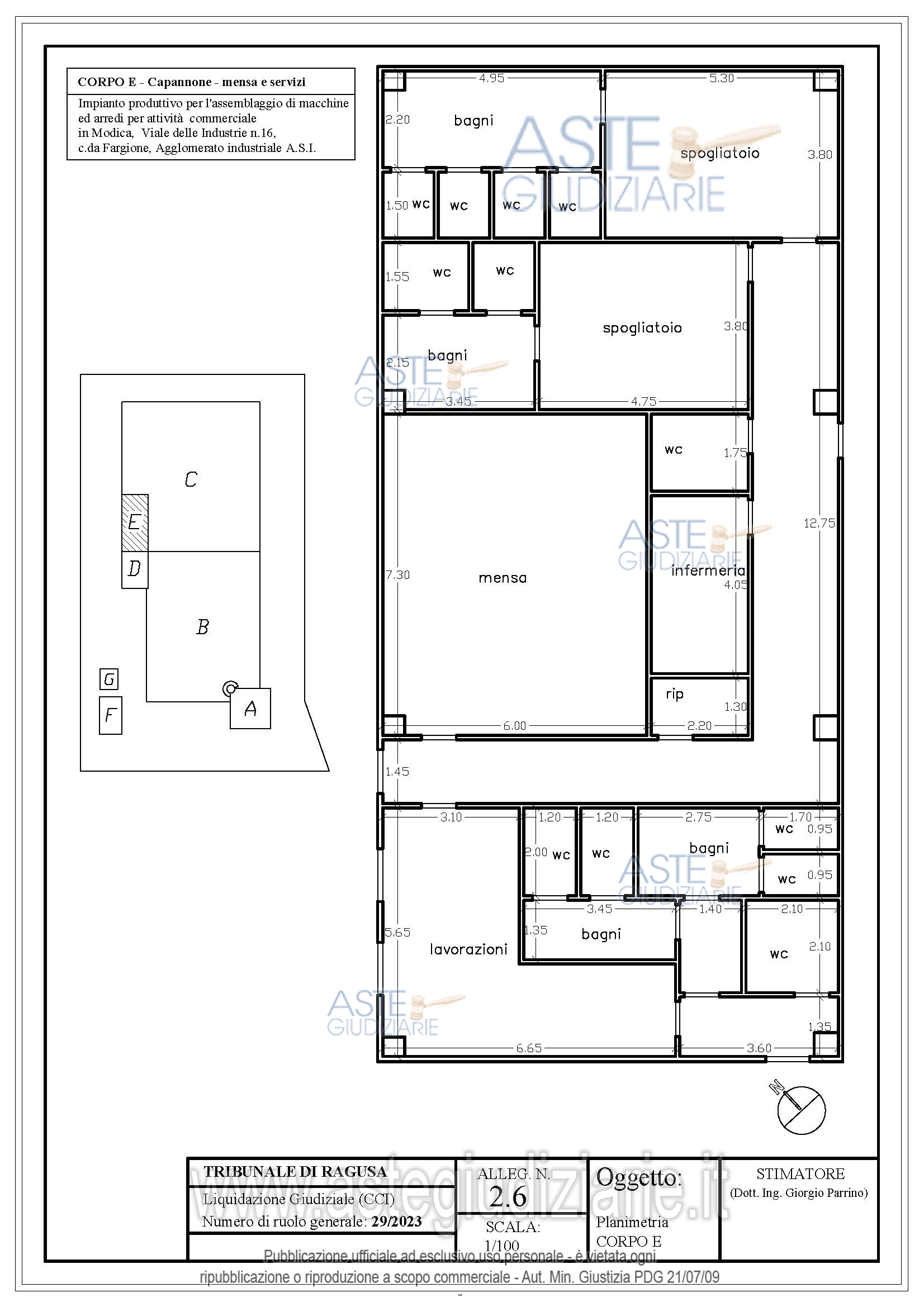
Vendita all'asta Competitiva, con gara telematica sincrona mista - LOTTO 1: Azienda sita in Modica (Rg) C.da Fargione V.le delle Industrie n.16,che ha operato nel settore della progettazione,produzione,commercializzazione di attrezzature e arredamenti per attività commerciali.Fanno parte dell’azienda i beni mobili,gli arredi,le giacenze di magazzino,le attrezzature,gli impianti,nonché il complesso immobiliare realizzato su lotto di circa mq.14.000 composto da capannone esteso circa mq.6010,palazzina uffici su 3 livelli di circa mq.270 per piano e alloggio custode di circa mq.110. Prezzo base € 3.266.067,00 (offerta minima € 3.266.067,00). Data vendita 17/12/2025 ore 16:30. Curatore Avv. Patrizia Gurrieri - Email "segreteria@studiolegalegurrieri.it"; Tel. 0932220000. Rif. Tribunale di Ragusa - Liquidazione giudiziale(cci) n. 29/2023
| Tipologia di vendita | Giudiziaria |
|---|---|
| Modalità di vendita | Sincrona mista |
| Termine presentazione domande | 16/12/2025 ore 13:00 |
| Data e ora inizio gara | 17/12/2025 ore 16:30 |
- file_download Ordinanza
- file_download Perizia
- file_download Perizia
- file_download Perizia
- file_download Perizia
- file_download Perizia
- file_download Perizia
- file_download Perizia
- file_download Perizia
- file_download Perizia
- file_download Perizia
- file_download Perizia
- file_download Perizia
- file_download Perizia
- file_download Perizia
- file_download Perizia
- file_download Perizia
- file_download Perizia
- file_download Perizia
- file_download Perizia
- file_download Perizia
- file_download Perizia
- file_download Perizia
- file_download Perizia
- file_download Altro
- file_download Altro
- file_download Altro
- file_download Altro
- file_download Altro
- file_download Altro
- file_download Altro
- file_download Altro
- file_download Altro
- file_download Altro
- file_download Altro
- file_download Altro
- file_download Altro
- file_download Altro
- file_download Altro
- file_download Altro
- file_download Altro
- file_download Avviso